Holthausen Notruf

Unser Notdienst ist auch über die Feiertage wie gewohnt für Sie erreichbar.

Wanne mit
Türeinstieg

Projekt-Fakten

Zeitraum ca. 4 Wochen

Leistungsübersicht

  • Badkonzept und Baubegleitung
  • Raumoptimierung
  • Entkernen des bestehenden Badezimmers
  • Waagerechte Rohrleitungen und Strang erneuern
  • Elektroleitungen erneuern
  • deckenhohe Vorwände erstellen
  • Decke abhängen und dezentrales Licht integrieren
  • Wannenkasten für Spezialwanne erstellen
  • Fliesen an Wand und Boden verlegen
  • Wände spachteln, Vlies kleben und streichen
  • Decke streichen
  • Individuelle Lichttechnik
  • Lieferung und Einbau der Sanitärgegenstände
  • Wash WC integrieren
  • Eingang verbreitern und Glastür nach Maß

Wanne mit Türeinstieg

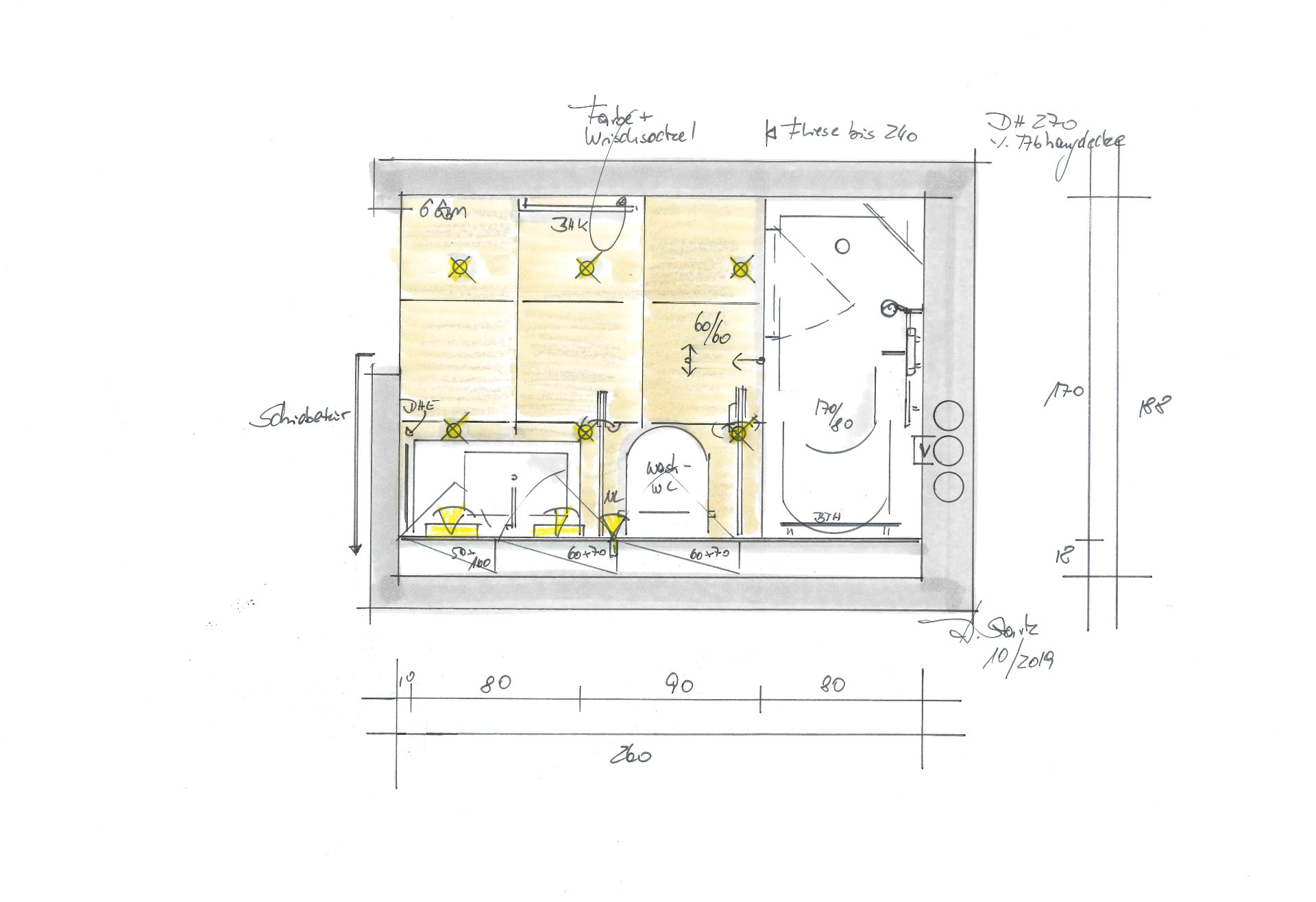
Die Praxisräume in einem Stadthaus sollen wieder als Wohnraum ausgebaut werden. Im 3.OG gelegen, aber mit Aufzug ausgestattet, bietet es sich an, eine sehr komfortable Wohnung einzurichten. Die beiden WCs der vorherigen Praxis werden zusammengelegt und zu einem Bad vereint. Die zukünftige Bewohnerin möchte sehr gerne eine Badewanne integriert wissen. Angesichts ihres fortgeschrittenen Alters ist ein Modell mit Tür als Einstieg die einzig sinnvolle Lösung.

Die Lösung: Türeinstieg plus durchdachte Bad-Ausstattung

Auf den zur Verfügung stehenden 5m² kann kein DIN-gerechtes, oder sogar rollstuhlgerechtes Bad errichtet werden. Dafür ist das Platzangebot einfach nicht ausreichend. Dennoch ist es das Ziel, möglichst viel Komfort zu integrieren, um eine eigenständige Nutzung des Badezimmers durch die Bewohnerin so perfekt wie möglich sicher zu stellen.

Der Raumzuschnitt und die Anforderungen der Bauherren bestimmen die Raumgeometrie. Die Badewanne nimmt, quer gestellt, den hinteren Bereich ein. Der verbleibende Platz von 18 cm muss für die sich anschließende Vorwandschale ausreichen, an der sich WC und Waschtisch anreihen. Um sowohl eine Spiegelfläche ab 100 cm als auch ausreichend Stauraum zu schaffen, wird die Vorwand deckenhoch ausgearbeitet und mit unterschiedlich hohen Einbauschränken bestückt. Der Zugang zum Bad wird mit einer außen laufenden Schiebetür versehen, um maximalen Bewegungsbereich im Raum zu schaffen.

Glastür und Wannenarmatur

Die durchgehende Glastür der Badewanne öffnet sich naturgemäß nach innen. Wenn man Duschen möchte, dient sie als Duschabtrennung und der kleine Ecksitz bietet sich zum Sitzen oder Abstellen der Füße an. Möchte man Baden, dann verschließt die mechanische Verriegelung auf dem Wannenrand zeitgleich den Abfluss der Wanne. So kann es nicht geschehen, dass eine nicht richtig verschlossene Tür beim Baden zu Überschwemmungen führt. Zu beachten ist natürlich, dass nach dem Baden das Wasser erst abgelassen werden muss, bevor man aus der Badewanne heraustreten kann! Ein Handtuch zum Umlegen in erreichbarer Nähe ist dann sinnvoll.

Die Wannenarmatur ist so positioniert, dass die Glastür nicht daran anstößt, aber zugleich auch eine einfache Bedienung möglich ist – vom Fußende aus beim Duschen, wie auch beim Baden. Die Brausestange ist als stabile Ausführung gewählt, an der man sich gegebenenfalls festhalten und – dank Winkelgriff-Gestaltung – sogar auch abstützen kann.

Ein gutes Bad bringt uns in
Harmonie mit uns selbst.

Andrea Stark-Nienhaus

Lernen Sie unser
Leistungsspektrum kennen

Mieterbad
Mieterbad
Barrierefrei
Barrierefrei
Wannenbad
Wannenbad
Duschbad
Duschbad
Teilrenovierung
Teilrenovierung
Wohnraum, Licht & Co
Wohnraum, Licht & Co

Holthausen Notruf

Unser Notdienst ist auch über die Feiertage wie gewohnt für Sie erreichbar.