Holthausen Notruf

Unser Notdienst ist auch über die Feiertage wie gewohnt für Sie erreichbar.

Masterbad mit
bodenbündiger
Dusche

Projekt-Fakten

Leistungsübersicht

  • Badkonzept und Baubegleitung
  • Entkernen des bestehenden Badezimmers
  • Waagerechte Rohrleitungen erneuern
  • Elektroleitungen erneuern
  • bodenbündige Duschfläche erstellen
  • Decke abhängen und dezentrales Licht integrieren
  • Speziallicht biodynamisch und Farbeinstellbar
  • Individuelle Lichttechnik
  • Vorwände und Duschsitz erstellen
  • Fliesen an Wand und Boden verlegen im Megaformat
  • Wände spachteln, Vlies kleben und streichen
  • Decke streichen
  • Rolladentechnik elektrifizieren
  • Lieferung und Einbau der Sanitärgegenstände
  • Wash WC integrieren
  • Glaswand nach Maß
  • Zeitraum 4 Wochen

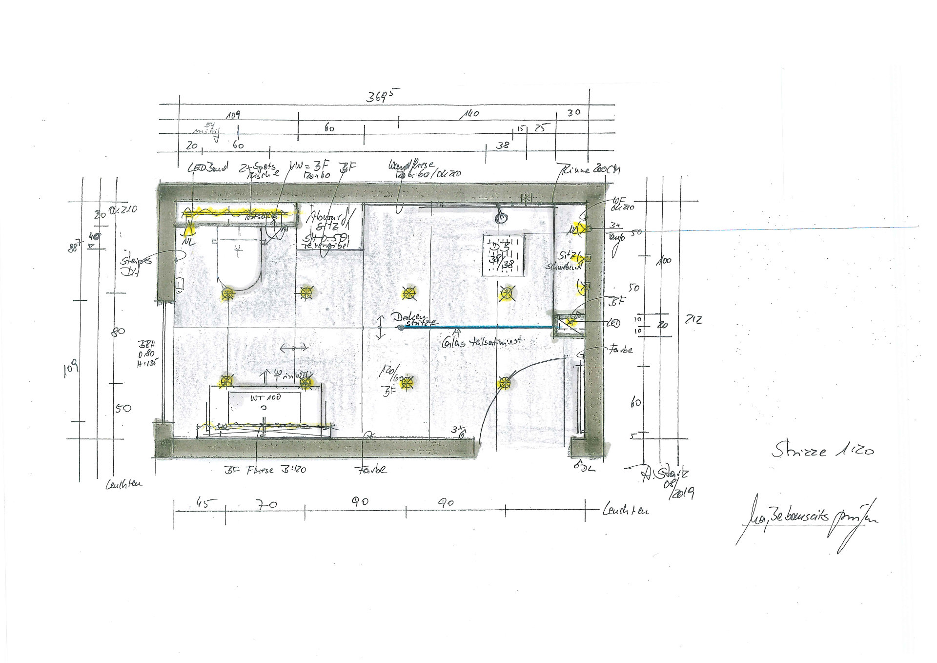
Masterbad mit bodenbündiger Dusche

Ein Bauherrenpaar möchte das durchaus funktionale und immer noch schöne Badezimmer im EG, das dem Schlafzimmer gegenüber liegt, renovieren. Die Dusche ist bereits bodenbündig gestaltet aber mit 90 cm im Quadrat nicht wirklich großzügig. Gestaltung und Farbgebung erinnern an die 80er Jahre und passen somit nicht mehr zu dem wunderschönen Einfamilienhaus im Bergischen Land, in dem in den letzten Jahren fast alle Bereiche dem aktuellen Anspruch der Bauherren angepasst wurden.

Der Wunsch, den Raum auch für das Alter perfekt auszustatten steht im Vordergrund, kombiniert mit einer aufgeräumten, klassischen und reduzierten Ausstrahlung in schwarz-weiß. Der Doppelwaschtisch kann durch ein größeres Solomodell mit ausreichend Stauraum ersetzt werden, auf den Komfort des Wäscheabwurfes und auch die Nutzung des Bidets als erweiterte Körperhygiene soll nicht verzichtet werden.

Die Lösung: Duschzone im Gäste-WC

Der Zuschnitt des Gäste-WCs bietet an, die linke Raumhälfte mit einer großzügigen Duschzone zu belegen und den eigentlichen WC-Bereich für die Gäste vom Platzbedarf her auf ein Minimum zu reduzieren. Der bestehende Rohrschacht wird verlängert und mit einer großen Nische versehen, in der Shampoo und Co abgelegt werden können. Über die gesamte Raumbreite hinweg wird ein Duschpodest erstellt, das mit einer Tiefe von 75 cm –aber einer Breite von 150 cm – ein bequemes Duscherlebnis ermöglicht. Auf dem verbleibenden 100 cm teilen sich WC und eine kleine Waschschale den Platz, um die Rolle des Gäste-WCs weiterhin abzudecken.

Alle Raffinessen der Innenarchitektur werden eingesetzt, um in diesem doch recht kleinen Raum eine maximale Großzügigkeit zu vermitteln. Die Formensprache ist sehr reduziert, die Fliesengröße hingegen maximiert, die Farben sind hell und warm gehalten und Linien werden zwingend übernommen. Die Lichttechnik spielt eine große Rolle, und auch das Kontrastspiel kommt nicht zu kurz.

Dusch-Ausstattung und Linienentwässerung

Das UP Thermostat an der Seitenwand der Dusche versorgt – einfach in der Handhabung – die Deckendusche, die bündig in der Abhangdecke eingelassen ist und eine Handbrause, die an einem praktischen und formschönen Relingsystem höhenverstellbar positioniert ist. Es besteht sowohl die Möglichkeit, mit ausreichend Platz unter der Deckendusche einen erfrischenden Regenguss zu erleben, wie auch im Sitzen mit der Handbrause die tägliche Hygiene vorzunehmen.

Um die exakte Geradlinigkeit weiter zu spinnen, verlaufen die Außenkanten von Thermostat und Deckendusche in einer Geraden. Die durchlaufende Linienentwässerung mit 200cm Länge an der Längsseite der Dusche nimmt das Duschwasser auf. Der gesamte hintere Bereich des Bades ist im Gefälle gelegt – somit können die großformatigen Fliesen als Ganzes wirken und müssen nicht durch Gefälleschnitte unterbrochen werden.

Multifunktionaler Wäscheabwurf

Zum Ende der Duschzone wird der Wäscheabwurf als Sitzelement ausgearbeitet. Der durch den Schreiner angefertigte Holzkasten wird bauseits verfliest und durch einen Klappdeckel in Weiß verschlossen. Die Bauherren können weiterhin ihre Wäsche abwerfen, aber den Würfel auch als Sitzelement, Ablage oder zum Füße abstellen beim Abtrocknen nutzen. Die Breite des Würfels ist genau auf eine Fliesenbreite angepasst und gibt somit auch den weiteren Fugenschnitt an.

Der Raum wird durch eine längs verlaufende Fuge geteilt – die zugleich die Tiefenbegrenzung der Duschzone und Position der maßgeschneiderten Glasscheibe ist. Dieser Punkt war ein wesentliches Argument für die Entscheidung, die Fliesen im Maß 120 cm zu wählen.

WC-Gestaltung und Riemchenoptik

Das WC schmiegt sich in die Ecke neben dem Fenster. Die notwendige Vorwand ist über die funktionale Höhe von 120 cm hinaus ausgearbeitet bis zur Oberkante der Wandfliesen in Höhe von 210 cm. Hier spiegelt sich die seitlich offene Nische, die mit LED-Spots beleuchtet und für Dekorationsgegenstände zur Verfügung steht. Auch hier läuft die helle Wandfliese in die Nische im Fugenschnitt hinein – der gesamte WC-Block stellt sich durch die Verfliesung mit den dunklen Bodenfliesen in den Vordergrund. Der Papierhalter hängt praktisch im rechten Winkel zum WC – die WC Bürste verschwindet unsichtbar hinter einer verfliesten Klappe.

Die Kopfseite des Raumes darf mit einer deckenhohen Gestaltung seine Wirkung entfalten. In der Farbe der dunklen Fliesen, aber mit einem eigenen Format in Riemchenoptik, rückt diese Wandgestaltung den Raum in das rechte Format. Zu bedenken ist allerdings hierbei, dass bei Sonneneintritt durch das große Fenster die Wand im Gegenlicht noch dunkler erscheint. Eine Fensterdekoration mit einem Raffrollo oder Plissee ist sicherlich noch eine sinnvolle Investition.

Waschtisch und Möblierung

Dem WC gegenüberliegend thront der Waschtisch an einer liegenden Fliesenreihe aus den dunklen Bodenfliesen. Die Querfuge in Höhe von 90 cm verläuft im gesamten Fliesenbereich und hier genau auf der Oberkante des Waschtisches aus Porzellan. Ein Unterschrank mit zwei Laden und ein breiter Spiegelschrank mit optimaler Lichttechnik runden das Ensemble ab und dienen als Stauraum im Bad. Neben dem Waschtisch wartet eine große freie Fläche noch auf ein spannendes Bild, das sich die Bauherren noch aussuchen oder machen lassen möchten. Für diesen durchaus wichtigen Dekorationsgegenstand verbleibt der Badheizkörper unsichtbar an seinem alten Platz hinter der Tür.

Dieser Raum gewinnt durch seine geradlinige und reduzierte Möblierung an Größe, die strenge Linienführung verleiht das Gefühl der klaren Ordnung, die Grundfarbe schwarz-weiß in natürlichen Nuancen vermittelt einen klassischen Charakter. Die Wärme im Raum, Lebendigkeit und immer wieder neu einstellbare Farbnuancen im Raum werden durch die aufwendige Lichttechnik erreicht.

Ausgeklügeltes Lichtkonzept

Neben dem Funktionslicht am Spiegelschrank leuchten die kleinen LED-Spots in den Nischen und die indirekte LED-Beleuchtung über dem WC-Modul als Effektlicht zeitgleich auf. Eine kleine LED-Leuchte neben dem WC und die drei Spots unter der Sitzbank werden über einen Bewegungsmelder gesteuert und lassen ihr Licht automatisch beim Betreten des Raumes über den Boden gleiten und weisen den Weg beim nächtlichen Badbesuch.

Die multifunktionalen Deckenleuchten werden getrennt gesteuert und haben neben der üblichen Dimmfunktion auch die Möglichkeit, die Lichttemperatur und auch die Lichtfarbe individuell einzustellen. So kann die Aussage im Raum jedes Mal neu gewählt werden – je nach eingestellter Farbnuance. Ein warmer Rotton, ein kühles Blau oder eine beruhigende Grünnuance finden in dem Raum eine wundervolle Möglichkeit sich zu entfalten und die Ausstrahlung maßgeblich zu beeinflussen – immer wieder neu.

Diese Technik gipfelt in der Möglichkeit, biodynamisches Licht zu wählen – dann wird die Lichttemperatur passend zur Tageszeit automatisch eingestellt. Ein sehr natürliches und wohltuendes Gefühl – der Natur nachempfunden.

Lernen Sie unser
Leistungsspektrum kennen

Mieterbad
Mieterbad
Barrierefrei
Barrierefrei
Wannenbad
Wannenbad
Duschbad
Duschbad
Teilrenovierung
Teilrenovierung
Wohnraum, Licht & Co
Wohnraum, Licht & Co

Holthausen Notruf

Unser Notdienst ist auch über die Feiertage wie gewohnt für Sie erreichbar.