Holthausen Notruf

Unser Notdienst ist auch über die Feiertage wie gewohnt für Sie erreichbar.

Mieter-Komplettbad
mit Wanne
und Dusche

Projekt-Fakten

Zeitraum ca. 4 Wochen

Leistungsübersicht

  • Badkonzept und Baubegleitung
  • Entkernen des bestehenden Badezimmers
  • Waagerechte Rohrleitungen erneuern
  • Elektroleitungen erneuern
  • Duschpodest und Vorwände erstellen
  • Fliesen an Wand und Boden verlegen
  • Wände spachteln, schleifen und streichen
  • Decke streichen
  • Lieferung und Einbau der Sanitärgegenstände

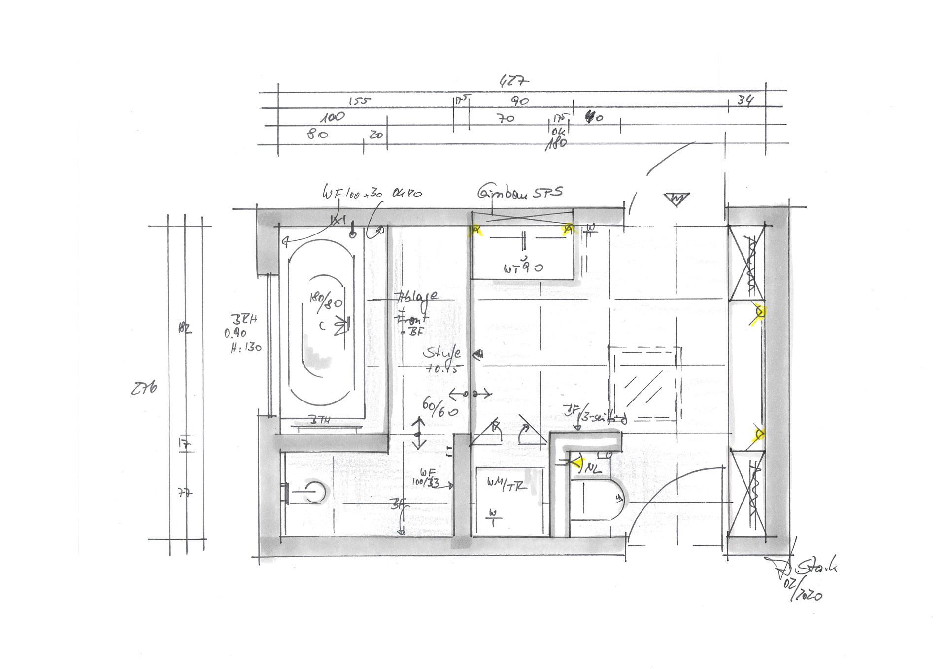
Mieter-Komplettbad mit Wanne und Dusche

Auf 12 m² ist das Komplettbad in einer Mietwohnung recht großzügig und die Aufteilung im Raum auch unstrittig. Lediglich die Waschmaschine soll – möglichst mit einem Trockner gemeinsam – aus dem Sichtbereich genommen werden. Auch die Toilette könnte ein wenig mehr Intimsphäre vertragen. Generell soll das optische Bild der modernen Wohnung angepasst und in die heutige Zeit transportiert werden.

Sichtschutz für Waschmaschine, Trockner und WC

Die Lösung für die Geräte und das WC liegt in der Integration einer Trockenbauwand, die parallel zur Duschwand nach Fugenschnitt eingestellt wird. So entsteht eine Nische in der beide Geräte übereinander gestapelt und hinter einer Doppeltür versteckt werden können. Auf der Rückseite findet das Wand-WC seinen Platz und durch die l-förmige Gestaltung auch einen Sichtschutz von der Haupteingangstür zum Bad.

Gezielte Gestaltungsakzente

Die Stufe zu Badewanne und Dusche verbleibt und wird im Bereich Dusche bodenbündig und durchgehend verfliest aufgearbeitet. Der breite Waschtisch wird etwas verrückt, sodass die vorhandene Nische für einen Einbauschrank mit seitlicher Beleuchtung genutzt werden kann.

Bodenfliesen im Format 60 x 60 cm bekleiden zusätzlich eine Längsseite in der Duschzone und die neue Trockenbauwand um Akzente zu setzen. Eine großformatige Wandfliese im Format 100 x 33 cm in Weiß matt vervollständigt das bewusst gestaltete Fliesenbild. Alle restlichen Wände und die Decke werden gestrichen, die vorhandenen Einbaumöbel neu lackiert.

Gerne wollen wir mit Ihnen unsere Geschichte
fortschreiben – egal ob als Kunde oder Partner.

Andrea Stark-Nienhaus

Komplettbadlösungen

0221-79102-121

Lernen Sie unser
Leistungsspektrum kennen

Mieterbad
Mieterbad
Barrierefrei
Barrierefrei
Wannenbad
Wannenbad
Duschbad
Duschbad
Teilrenovierung
Teilrenovierung
Wohnraum, Licht & Co
Wohnraum, Licht & Co

Holthausen Notruf

Unser Notdienst ist auch über die Feiertage wie gewohnt für Sie erreichbar.