Holthausen Notruf

Unser Notdienst ist auch über die Feiertage wie gewohnt für Sie erreichbar.

Duschzone mit
bestehendem
Waschplatz

Projekt-Fakten

Zeitraum ca. 4 Wochen

Leistungsübersicht

  • Badkonzept und Baubegleitung
  • Entkernen des bestehenden Badezimmers
  • Raumoptimierung
  • Waagerechte Rohrleitungen erneuern
  • Elektroleitungen erneuern
  • bodenbündige Duschzone und Vorwände, Sitzelement erstellen
  • Zwischenwand einziehen
  • Decke teilweise abhängen und dezentrales Licht integrieren
  • Individuelle Lichttechnik
  • Fliesen an Wand und Boden verlegen im Megaformat
  • Wände spachteln, Vlies kleben und streichen
  • Decke streichen
  • Lieferung und Einbau der Sanitärgegenstände

Die Aufgabe: Ein Masterbad mit Hotelkomfort ausstatten

Es gilt, das Masterbad in einer Stadtvilla an die Ansprüche der Bauherren anzupassen. Eine großzügige Dusche soll dazu möglichst ebenerdig erstellt werden, um den Komfort, den man in allen Hotels erlebt und liebgewonnen hat, auch zuhause genießen zu dürfen. Die Badewanne kann dafür ganz entfallen. Der Zugang zum getrennten WC kann geschlossen werden. Lediglich der große Natursteinwaschtisch mit dem eingebauten Spiegelschrank ist dem Bauherrn ans Herz gewachsen und soll möglichst nicht verändert werden, ebenso die rechte Spiegelwand im Raum.

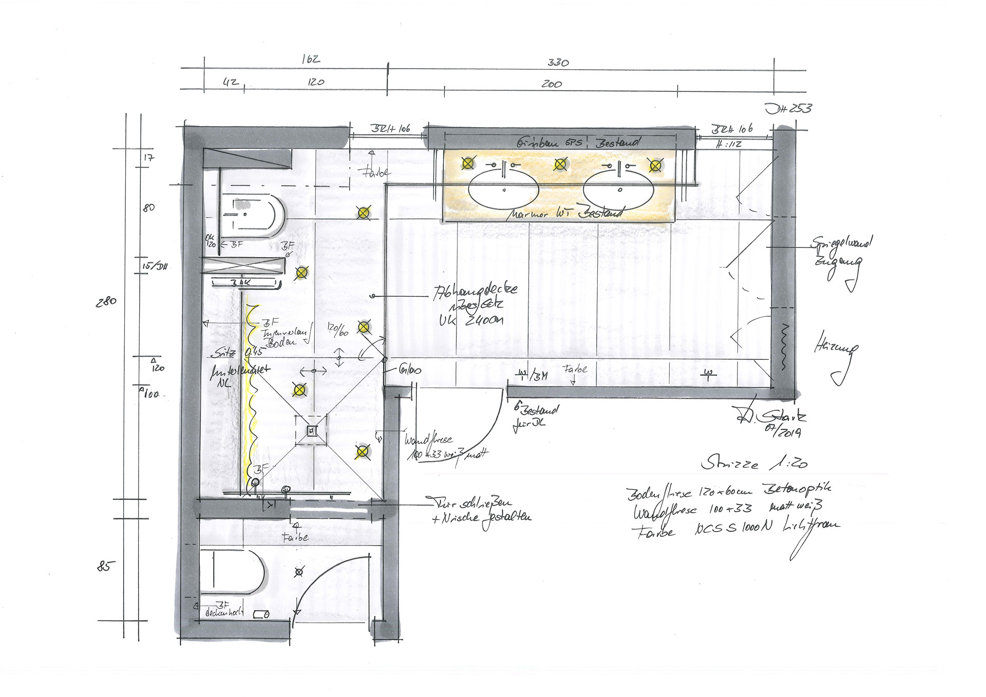
Der Raumzuschnitt von stattlichen 11 m² in L-Form teilt sich in den rechten Bereich für den vorhandenen Waschtisch und dem versteckten Zugang zum seitlichen Treppenhaus sowie den linken Bereich mit 4,5 m², der neu bestückt werden kann. Hier teilen sich aneinander gereiht die Duschtasse mit hohem Einstieg und die Badewanne den Platz. Neben der Dusche ist der Zugang zum getrennt verbauten WC, das aber auch direkt vom Flur zugänglich ist.

Skizze / Grundriß
Skizze / Grundriß

Die Lösung: Bodenbündige Duschzone plus Wohlfühl-Ambiente

Vor der Dusche ist ein Bodenablauf verbaut, der wahrscheinlich die Chance gewährt, eine bodenbündige Duschzone vorzusehen, ohne das darunterliegende Geschoss zu beeinträchtigen. Sinnvoll wäre es, den Ablauf in diesem Bereich zu positionieren. Die Nische in der Breite von 160 cm bietet sich dafür geradezu an. Mit einem Punktablauf, der sich sehr nah an der alten Position orientiert, entsteht eine Duschfläche im Maß von 120 x 120 cm.

Die restlichen 40 cm werden mit einer durchlaufenden Sitzbank gefüllt, die ein entspanntes Duschen, Sitzen im Raum und eine relaxte Atmosphäre vermittelt. Für den Badheizkörper, der Wärme im offenen Bereich spenden und die Handtücher kuschelig und griffbereit am rechten Platz bereithalten soll, wird eine Trockenbauwand eingestellt. Natürlich wird die Sitzbank bis an diese Linie heran gezogen – so entsteht ein harmonisches Raumgefüge.

Getrenntes Bidet & komfortable Dusch-Ausstattung

Der dahinter verbleibende Raum kann als Staumöglichkeit für Handtücher und Co genutzt werden. Aus dieser räumlichen Gestaltungsmöglichkeit, ergibt sich ein weiterer Wunsch des Bauherrn. Ein getrenntes Bidet wäre auch noch ein Wunsch – wenn sich der Platz dafür schon anbietet. Dem Objekt wird dem Vorzug gegenüber einem kombinierten Wasch-WC gegeben und auch die Position – getrennt vom WC – ist ausdrücklich gewünscht. Kurzerhand wird der Bereich für das Bidet auf die Breite von 80 cm erweitert, um eine komfortable Nutzung zu gewährleisten.

Die vorhandene Tür zum WC wird verschlossen. Es bietet sich an, in dem Bereich eine Nische zu erstellen, um Shampoo und Co unterbringen zu können. Eine Thermostatarmatur wird so angebracht, dass man sowohl im Sitzen, wie auch im Stehen die Kopf- und Handbrause bedienen kann. Eine breite Reling erleichtert die Bewegungen im Nassbereich und ein extra gesteuerter Kneippschlauch beschert den morgendlichen kalten Wasserguss. Auf eine Brausestange wird bewusst verzichtet, da alle vorgesehenen Nutzer die Handbrause in die Hand nehmen. Für den Fall, dass man sie dennoch einmal im oberen Bereich einhängen möchte, wird lediglich ein einzelner Halter mit beweglicher Aufnahme in entsprechender Höhe montiert.

Beleuchtung und WC-Bereich

Die Beleuchtung des bisherigen Bades war naturgemäß nicht ausreichend. Um aber den Aufwand einer komplett abgehängten Decke zu umgehen, wird die Abhängung nur im Bereich des linken Raumteiles, verbunden mit einem Riegel über der Waschtischanlage vorgesehen. So können dezentrale Deckenspots mit dimmbaren LED-Licht für ausreichend Licht im Raum sorgen. Besonders der Waschtisch bedarf dieser Beleuchtung, da die vorhandene Spiegelschranksituation keinen Platz für Wandleuchten lässt.

In der Sitzbank wird eine durchlaufende LED-Leiste eingebaut die, per Bewegungsmelder gesteuert, ein schönes Licht auf den Boden spendet und auch bei Nacht eine sichere Orientierung im Raum erleichtert. Der WC-Bereich lässt im Hinblick auf die Einrichtung nur in Sachen Optik wirklichen Spielraum. Die Betonfliese bekleidet den Boden und die Rückwand des WC – deckenhoch. Die bisherige Entlüftungssituation über den Spülkasten wird beibehalten und nur die zugehörige Ausstattung erneuert – der Aufwand einer Kernbohrung für einen üblichen Ventilator wäre übertrieben gewesen.

Marmorplatte mit neuen Armaturen als entspannter Partner im Betonbad
Marmorplatte mit neuen Armaturen als entspannter Partner im Betonbad

Armaturen als gestalterisches i-Tüpfelchen

Während der Umbauphase stellt sich heraus, dass auch die bestehenden Armaturen ersetzt werden müssen. Somit können die zum Heute passenden, sehr geradlinigen Armaturen das i-Tüpfelchen werden im Tanz mit Alt und Neu. Die Kombination der weich wirkenden Marmorplatte mit der rau anmutenden Betonfliese wird erst durch die modernen Armaturen in Chrom perfekt. Auch in ihr vereinen sich weiche und harte Elemente – sie spiegeln das Gestaltungskonzept gekonnt wieder.

Andrea Stark-Nienhaus

Komplettbadlösungen

0221-79102-121

Lernen Sie unser
Leistungsspektrum kennen

Mieterbad
Mieterbad
Barrierefrei
Barrierefrei
Wannenbad
Wannenbad
Duschbad
Duschbad
Teilrenovierung
Teilrenovierung
Wohnraum, Licht & Co
Wohnraum, Licht & Co

Holthausen Notruf

Unser Notdienst ist auch über die Feiertage wie gewohnt für Sie erreichbar.