Holthausen Notruf

Unser Notdienst ist auch über die Feiertage wie gewohnt für Sie erreichbar.

Whirlpoolwanne
statt Duschzone

Projekt-Fakten

Zeitraum ca. 3 Wochen

Leistungsübersicht

  • Badkonzept und Baubegleitung
  • Raumoptimierung durch Wand entfernen
  • Podest und Wannenkasten für Pool erstellen
  • Rohrleitungen anpassen erweitern
  • Vorwand erstellen
  • Decke beiarbeiten
  • Fliesen im Megaformat und Mosaik verlegen
  • Lichttechnik erstellen und integrieren
  • Wände spachteln, Vlies kleben und streichen
  • Decke streichen
  • Lieferung und Einbau der Sanitärgegenstände
  • Zeitraum 3 Wochen

Whirlpoolwanne statt Duschzone

Zwei hochwertige Mieteinheiten werden zusammengelegt und verfügen somit über gleich drei Bäder, zwei davon mit wunderschönen, bodenebenen Duschflächen. Was jedoch zur Entspannung fehlt, ist eine Badewanne in einem der Bäder – am besten mit einer Poolfunktion. Diese könnte eine der vorhandenen Duschzonen ersetzen.

Nachdem alle Möglichkeiten der Integration einer Whirlwanne in eine vorhandene Raumnische durchgespielt worden sind, wird noch einmal neu gedacht: Mit einem unverstellten Blick aus der Wanne heraus ließe sich das Badeerlebnis noch entspannender zu gestalten!

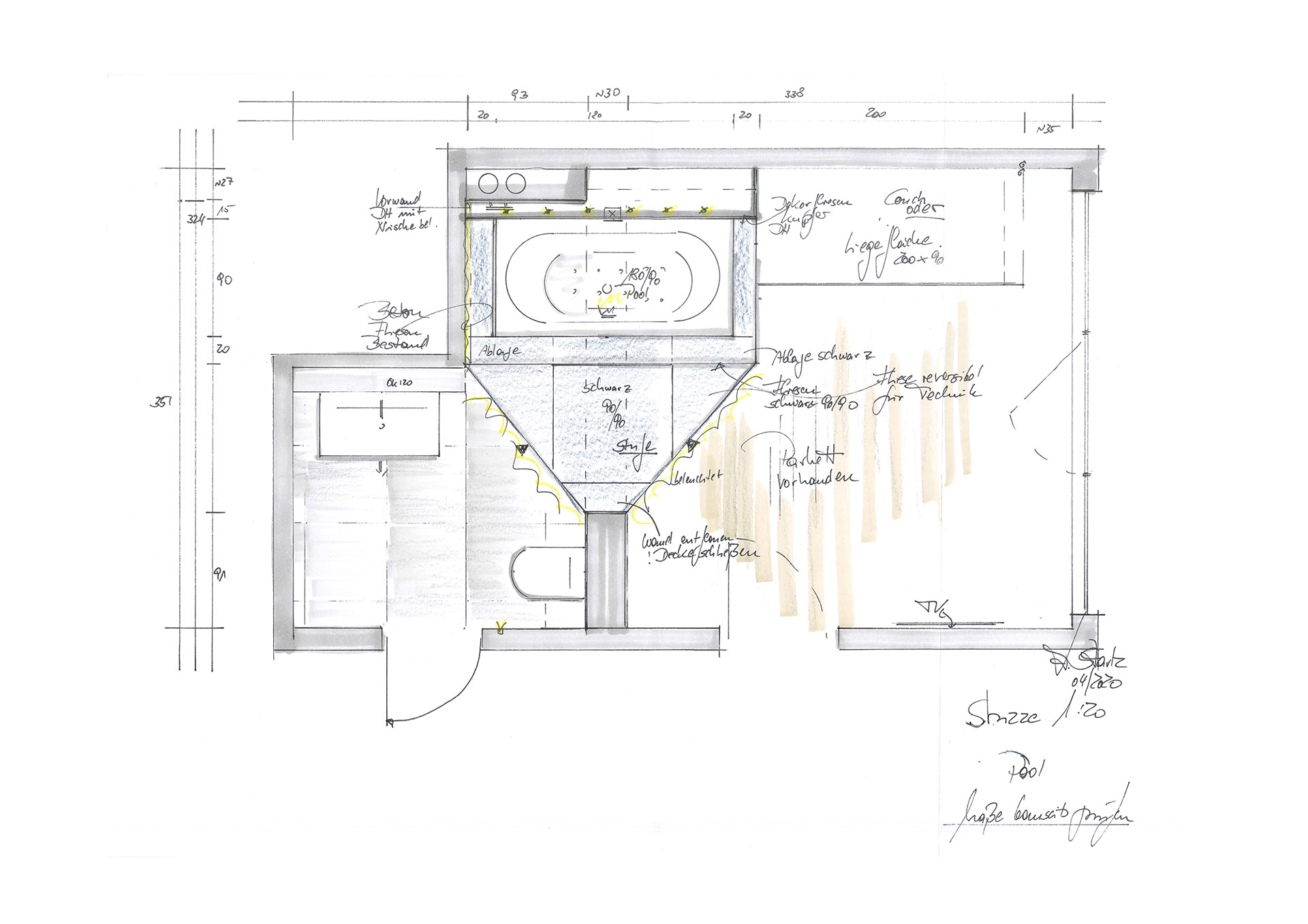
Grundriss Integration Pool
Grundriss Integration Pool
Pool bündig eingefasst
Pool bündig eingefasst

Um den Blick auf das naheliegende Schloß aus der Badewanne heraus zu gewähren, muss die Zwischenwand zum Gästezimmer teilweise entfernt werden. Das Badezimmer vergrößert sich dadurch erheblich und wird zusätzlich als Sportzimmer um deklariert. Zwei Dinge die gut zusammen passen – wenn das Bad einen entsprechenden Charakter innen hat.

Eine deckenhohe Vorwand mit durchgehender Ablagenische hinter dem Pool birgt nicht nur die Wasserinstallation, sondern retuschiert auch die unterschiedlichen Raumtiefen. Das außergewöhnliche Kupfermosaik zieht den Blick magisch an und reflektiert liebevoll die eintretenden Sonnenstrahlen.

Ansicht: Kombination der beiden Räume
Ansicht: Kombination der beiden Räume

Die bestehenden Rohrleitungen zum vorhandenen WC müssen mit einer Stufe überbrückt werden. Um den Blick im Liegen auf die Skyline noch zu verbessern, wird der Pool auf diese durchgehende Stufe aufgestellt. Eingebrachte LED Bodenleuchten sorgen hier für einen sicheren Auftritt und einen schönen Akzent.

Um den komfortablen Pool herum, zieht sich eine dreiseitige Ablagefläche zum Schauen, zum Sitzen und Ablegen, Dekorieren schöner Dinge. Das Bad im Pool mit wohltuender Unterwassermassage wird durch eine Farblichtbeleuchtung in der Wanne selbst zum sinnlichen Erlebnis.

Fliesengestaltung und Gesamtkomposition

Die Fliesengestaltung mit großformatigem, schwarzem Feinsteinzeug und einem kupferfarbenen Metallmosaik spiegelt den Bauherrengeschmack wider, ganz im Einklang mit den vorhandenen Elementen in Betonoptik. Das Resultat ist ein gelungenes Gesamtbild und ein wunderschönes Ambiente für ein entspannendes Wannenbad mit Blick auf die Schlosskulisse in unmittelbarer Nähe.

 

Andrea Stark-Nienhaus

Komplettbadlösungen

0221-79102-121

Lernen Sie unser
Leistungsspektrum kennen

Mieterbad
Mieterbad
Barrierefrei
Barrierefrei
Wannenbad
Wannenbad
Duschbad
Duschbad
Teilrenovierung
Teilrenovierung
Wohnraum, Licht & Co
Wohnraum, Licht & Co

Holthausen Notruf

Unser Notdienst ist auch über die Feiertage wie gewohnt für Sie erreichbar.