Holthausen Notruf

Unser Notdienst ist auch über die Feiertage wie gewohnt für Sie erreichbar.

Familienbad
mit Badewanne

Projekt-Fakten

Zeitraum ca. 4 Wochen

Leistungsübersicht

  • Badkonzept und Baubegleitung
  • Entkernen des bestehenden Badezimmers
  • Waagerechte Rohrleitungen erneuern
  • Elektroleitungen erneuern
  • Fenster erneuern
  • Wannenkasten mit Untertritt und Vorwände erstellen
  • Individuelle Lichttechnik
  • Fliesen an Wand und Boden verlegen
  • Wände spachteln, Vlies kleben und streichen
  • Decke streichen
  • Lieferung und Einbau der Sanitärgegenstände
  • angepasste Möbeleinbauten

Familienbad mit Badewanne

Eine junge Familie bewohnt eine Eigentumswohnung einer traditionellen Stadtvilla. Hohe Decken, hohe Fenster und schon der Eingang in das Objekt sind liebevoll seit der Jahrhundertwende bis heute beibehalten und gepflegt worden. Nun ist das Badezimmer in die Jahre gekommen und muss erneuert werden. Die traditionellen weiß-grauen Marmorfliesen ziehen sich vom Bad hinaus in den großzügigen Flur bis hin zum Gäste-WC. Der langfristige Plan ist es, ein Material zu finden, das für alle drei Bereiche gleichermaßen geeignet und attraktiv ist, um die Marmorfliesen vollständig zu ersetzen.

Zum einen ist der Geschmack der Bauherren ausschlaggebend, andererseits auch die Idee, die Tradition beizubehalten und doch modern, ohne übertriebenen Pflegeaufwand leben zu können. Im Vorfeld hatten sich die Bauherren schon mit dem Thema Zementfliesen beschäftigt und können sich diese Richtung vorstellen – aber zeitlos, modern und großzügig sollte es trotzdem sein.

Die Lösung: Moderne Fliesen mit traditionellem Chic

Originale Zementfliesen tragen den Nachteil mit sich, eine stärkere Aufbauhöhe zu besitzen und gerade der Einsatz im Bad ist bedenklich, da sie recht rutschig sein können. Im Leben mit Kindern keine geschickte Wahl. Dennoch – der Markt hat sich auf den Wunsch vieler Bauherren nach einer traditionellen Stilrichtung eingestellt und bietet eine Vielzahl von modernen Fliesen an, die der Technik von heute entsprechen, aber den Stil von früher perfekt widerspiegeln.

Die Wahl fällt auf eine Serie von Unicomstarker, Serie Réverie, in einem kleineren Schwarzweiss- Muster. Der Flur mit den vielen Türen und seinen nicht ganz geraden Wänden liefert die Inspiration dazu. Denn das etwas kleiner gehalten Muster der gewählten Fliesen kaschiert Unebenheiten. Wir verzichten auch auf den Einsatz eines Mäanders, um die Großzügigkeit nicht zu begrenzen. Die schwarzweiße Farbgestaltung und das zugehörige Muster treffen den Geschmack der Bauherren vermitteln eine zeitlose Eleganz und lassen sich gut mit Wandfarben kombinieren.

Badgestaltung und Badewanne

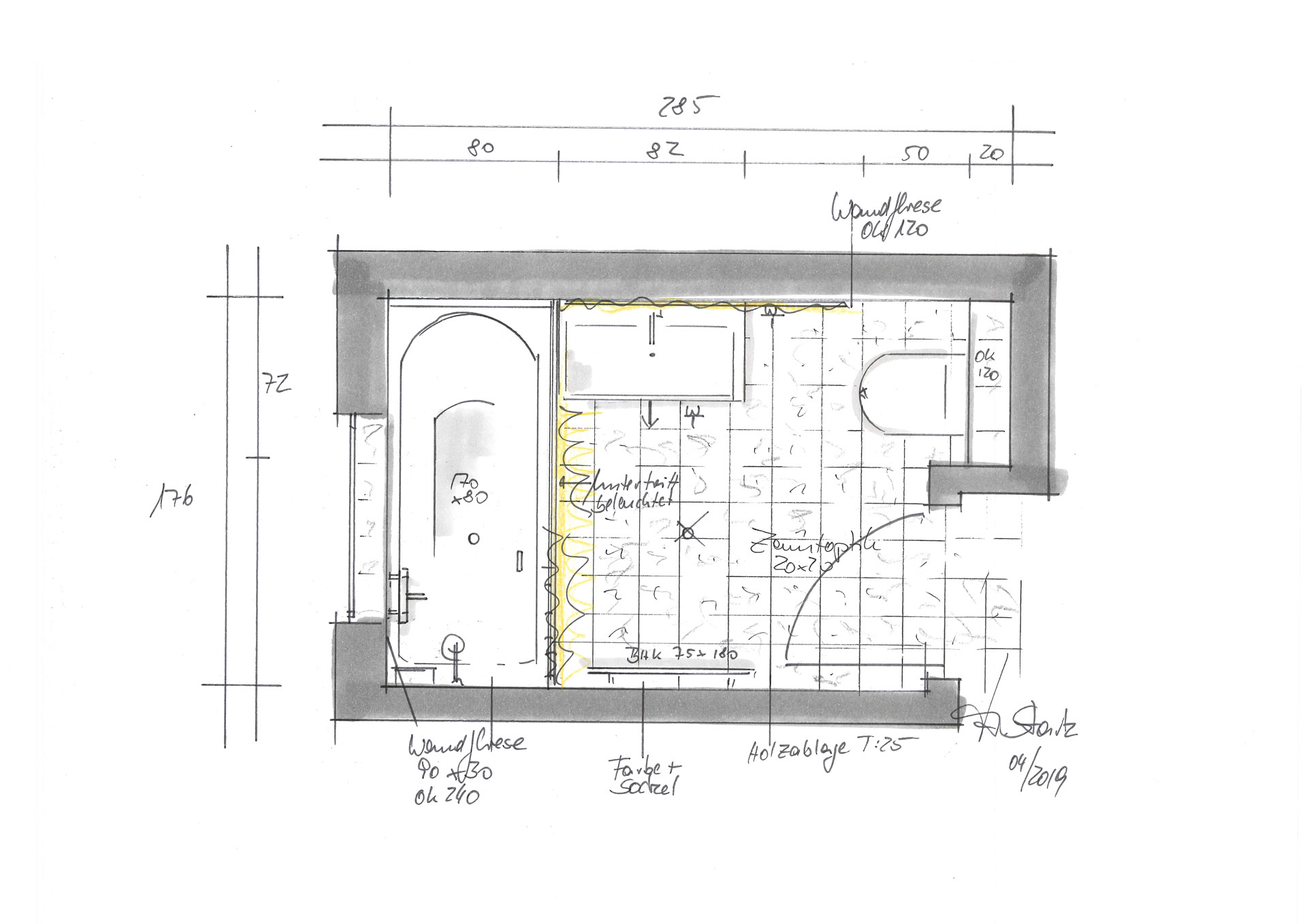
Während eines Familienurlaubs wird zunächst das Bad angegangen. Die Aufteilung lässt sich nicht sinnvoll anders gestalten. Mit noch nicht einmal 5 m² Grundfläche entspricht die Raumgröße dem früheren Durchschnitt. Die Badewanne vor dem Fenster soll beibehalten werden, da Baden und Duschen in der Familie eine große Rolle spielt. Der Waschtisch sollte etwas größer ausfallen, um auch zwei Personen zeitgleich die Möglichkeit zu geben, sich fertig zu machen. Und auch die zweite Toilette macht Sinn. Stauraum ist ein großes Thema und ebenso der Komfort, der heutzutage eine erhöhte Wohnqualität ausmacht.

Die Badewanne muss leider in der Länge von 170 cm verbleiben, da sich die gewünschte Länge von 180 cm nicht im Raum unterbringen lässt, aber sie kann immerhin auf die Breite von 80 cm erweitert werden. Ein Modell mit großem Innenraum, einer geraden Fläche zum Stehen und einem seitlich verlagerten Überlauf bietet ausreichend Platz zum Baden – ob alleine oder zu zweit – und ebenso auch zum entspannten Duschen.

Dusche und Waschtisch-Ensemble

Das Fenster wird erneuert und, um Einblicke aus dem gegenüberliegenden Garten zu verhindern, im unteren Bereich mit einer satinierten Folie ergänzt. Als Spritzschutz zum Raum hin fällt die Entscheidung gegen eine Glasfaltwand und für einen weißen, leichten Duschvorhang. Nicht nur, dass er pflegeleichter ist, als eine Glasvariante, er passt optisch auch besser in das Raumambiente. Vorhänge sind auch aus einem hochwertigen Material zu bekommen, das nicht am Körper klebt und beliebig oft gewaschen werden kann. In Verbindung mit einer hochwertigen Vorhangstange auch von der Gestaltungswirkung her ein klarer Gewinn.

Als Waschtisch wird ein geradliniges Modell in der Breite 82 cm ausgewählt, der direkt bis an die Wanne heranrücken kann. Mit einem intelligenten Unterschrank kombiniert, bietet dieses Ensemble ausreichend geschlossenen Stauraum. Im Schrank-Inneren befinden sich zwei weitere Steckdosen um Ladegeräte dauerhaft und versteckt im Raum zu platzieren. Mit einem an der Wand montierten Glashalter und Seifenspender verbleibt ausreichend Abstellfläche auf der Keramik.

Der große Spiegel mit einer umlaufenden LED-Lichtleiste spendet nicht nur viel Licht, sondern bietet auch die Möglichkeit, dass sich zwei Menschen nebeneinander am Waschtisch frisch machen können. Die optische Wirkung im Raum ist nicht zu verachten. Er vergrößert und zentriert optisch den Waschplatz Das WC in der Nische wird in einer kurzen Version gewählt um noch ausreichend Beinfreiheit zu generieren. Die übliche Vorwandhöhe wird als offene Ablagefläche genutzt und mit zwei weiteren, eingepassten Holzablagen erweitert. Um auch Handtücher und größere Dinge im Bad lagern zu können, wird diese Holzablage als großer Bruder auf der angrenzenden Wand – über dem Badheizkörper bis zur Badewanne hin – gespiegelt. Handtuchstapel und passende Boxen finden hier wieder ihren Platz. Auf dem extra breiten Badheizkörper darunter finden alle Handtücher der Familie ihren Platz zum Trocknen – und es erübrigt sich die Anbringung eines herkömmlichen Handtuchhalters neben dem Waschtisch.

Fliesen- und Farbgestaltung

Die traditionellen Fliesen im Format 20 x 20 cm werden auf dem Boden verlegt – im Muster schon an den angrenzenden Flur angepasst – und auch an der Front der Badewanne hochgezogen. Ein Untertritt an der Badewanne erleichtert das Herantreten und das Öffnen des Fensters – natürlich mit einer LED-Leiste kombiniert, die per Bewegungsmelder gesteuert wird. Bei Dämmerung oder Nacht gleitet ein warmer Lichtschein über den Boden und erleichtert die Orientierung. Die Höhe der Front ist in dem Fall genau abzustimmen, da die Musterfliesen einzeln aber auch zusammen ein Muster ergeben. Hier ist wahre Meisterkunst gefragt und ein bisschen Liebe zum Detail!

Die waagerechten Flächen – Fensterbank und Vorwandablage – sind passend dazu gleich gestaltet. Die übrigen Wandflächen sind mit einer großen weiß matten Fliese im Format 90 x3 0cm als ruhiger Gegensatz dazu belegt. Im Duschbereich der Badewanne incl. der gesamten Fensterfront bis zur Höhe von 240cm. Die Waschtischwand und der WC Bereich ist mit einer durchlaufenden Fuge auf 120cm reduziert. Der Wunsch nach einem teilverfliesten Bad besteht natürlich auch in dem Fall. Die übrigen Wände sind mit einem schwarzen Sockel versehen und mit wisch- und wasserfester Farbe gestrichen. Ein leichter hellblauer Farbton trifft nicht nur den Geschmack der Bauherren sondern schlägt einen schönen Bogen zur Stilepoche.

Lichtkonzept

Die Lichtkonzeption im Bad reduziert sich auf den großen Lichtspiegel, der ausreichend Licht im Bad verteilt, in Kombination mit dem hübschen und überaus praktischen Nachtlicht im Untertritt der Badewanne. Getrennt gesteuert wird aber auch ein Deckenauslass vorgesehen, um hier eine Pendelleuchte installieren zu können. Abgesehen von Ihrer Funktion als zusätzliche Lichtquelle ist diese allerdings eher als optisches Highlight zu sehen – eine wunderschöne Möglichkeit, um die traditionellen Bezüge der neuen Badgestaltung zu untermauern.

Lernen Sie unser
Leistungsspektrum kennen

Mieterbad
Mieterbad
Barrierefrei
Barrierefrei
Wannenbad
Wannenbad
Duschbad
Duschbad
Teilrenovierung
Teilrenovierung
Wohnraum, Licht & Co
Wohnraum, Licht & Co

Holthausen Notruf

Unser Notdienst ist auch über die Feiertage wie gewohnt für Sie erreichbar.