Holthausen Notruf

Unser Notdienst ist auch über die Feiertage wie gewohnt für Sie erreichbar.

Gäste-WC statt
Garderoben­bereich

Auf rund 1,5 m² soll anstelle der bisherigen Garderobenecke ein zusätzliches Gäste-WC im Vorraum des Wohnbereichs entstehen.

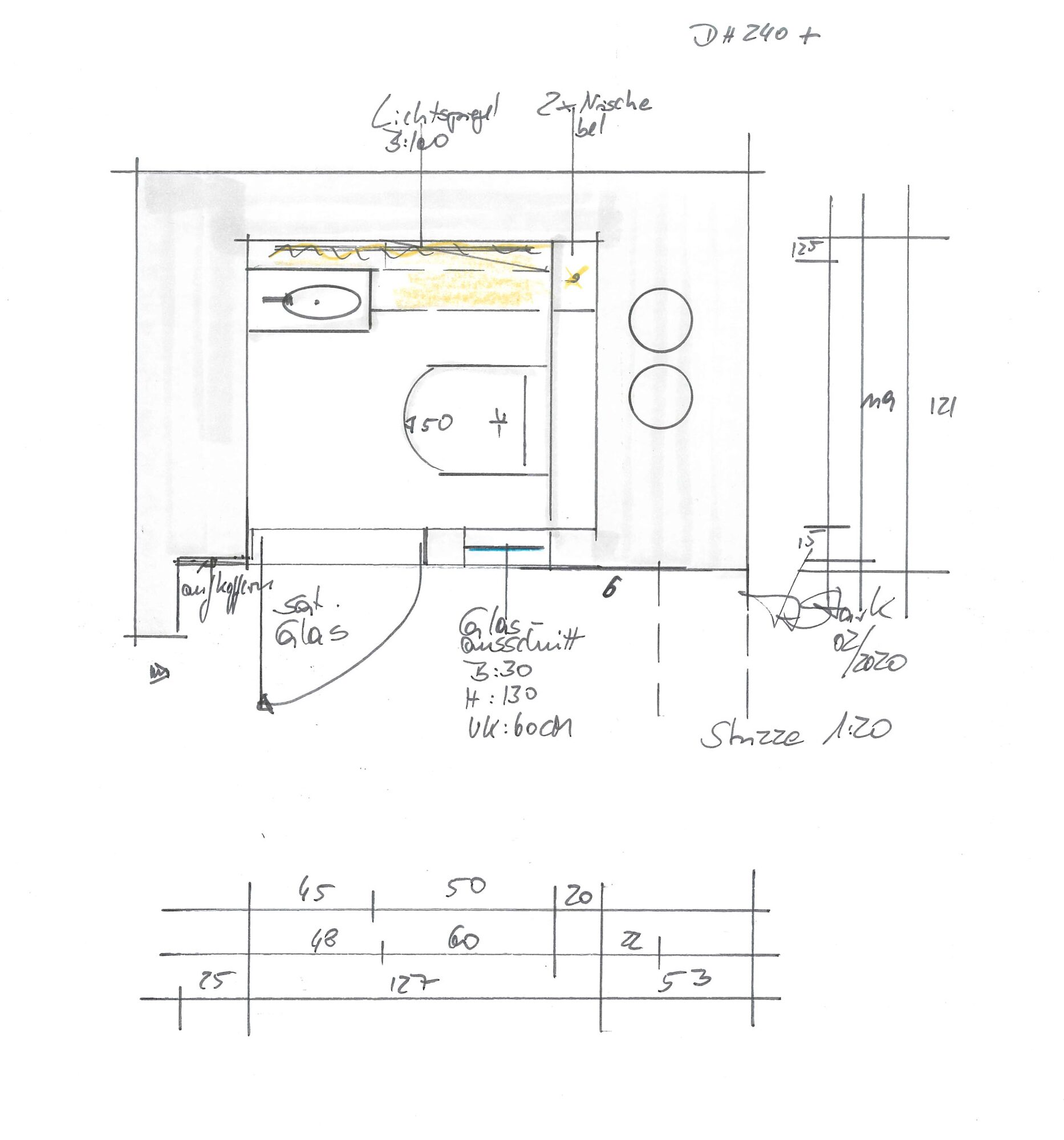
Grundriss
Grundriss
Skizze
Skizze

Trockenbauwand mit Tür und Sichtfenster

Von der Ecke aus, hinter der bislang die Garderobenecke untergebracht war, wird im Trockenbau eine neue Wand erstellt, die das künftige WC vom Vorraum abtrennt. In die Wand integriert sind eine satinierte Glastür sowie ein, ebenfalls satiniertes, Glasfenster. Beides erzeugt eine angenehm offene Wirkung und sorgt zugleich für ausreichend Intimität. Die Deckenhöhe von rund 320 cm ermöglicht es, einen zusätzlichen Stauraum über dem neuen Gäste-WC einzurichten: In Wandfarbe lackierte Holztüren verbergen hier zukünftig Koffer und Co.

Während der Bauarbeiten stellt sich heraus, dass die rechte Kopfwand ausreichend Platz gewährt, um den Unterputzspülkasten und die beiden Wandnischen darin zu verstecken. Die so gewonnen 20 cm nehmen wir gerne zum Raum hinzu. Mit einer Kernbohrung schaffen wir die Anbindung an die Bestandsrohleitungen.

Stauraum und großzügige Raumwirkung

Die vorhandene Verkofferung inkl. Verteilung der Fußbodenheizung verändern wir in der Form, dass hinter und neben dem schmalen Handwaschbecken aus Ceramostahl speziell angefertigte Holzplatten für Ablagefläche sorgen. Die untere Holzablage wird passgenau in die untere Nische eingelegt und vermittelt dem kleinen WC-Räumchen neben komfortabler Ablagefläche für Gästetücher und Deko auch noch eine optisch großräumige Wirkung. Dies wird durch den großformatigen, rundum beleuchteten Spiegel zusätzlich unterstützt.

Handwaschbecken mit Ablageflächen aus Holz
Handwaschbecken mit Ablageflächen aus Holz
Nischen beleuchtet und angepasst
Nischen beleuchtet und angepasst

Die geschickte Farbgebung der Sichtwand in Türkisgrün sorgt für den richtigen Aha-Effekt sowie für ein attraktives Farbspiel, das auch durch das satinierte Glas hindurch zu sehen ist. Alle verbleibenden Flächen – und auch der gesamte Vorraum – werden in lichtgrau gestrichen und somit dem übrigen Wohnbereich angepasst.

Klein aber Fein
Klein aber Fein

Das schönste Kompliment für das fertige Projekt ist, dass es so aussieht, als wenn es immer schon so hätte aussehen müssen – und dass die Gestaltung, trotz der vorgenommenen Einbauten, für optische Größe und Harmonie im Raum sorgt.

Andrea Stark-Nienhaus

Komplettbadlösungen

0221-79102-121

Lernen Sie unser
Leistungsspektrum kennen

Mieterbad
Mieterbad
Barrierefrei
Barrierefrei
Wannenbad
Wannenbad
Duschbad
Duschbad
Teilrenovierung
Teilrenovierung
Wohnraum, Licht & Co
Wohnraum, Licht & Co

Holthausen Notruf

Unser Notdienst ist auch über die Feiertage wie gewohnt für Sie erreichbar.